物件詳細※
for Rent
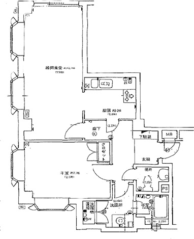
藤和青葉台コープ103号室

| 最寄駅 | 神泉町駅より徒歩7分 渋谷駅より徒歩13分 |
|---|---|
| 住所 | 目黒区青葉台3丁目1番6号 |
| 賃料 | 195,000円 |
| 管理・共益費 | 40,380円 |
| 敷金・礼金 | 敷金2ヶ月/礼金1ヶ月 |
| 構造 | RC造4階建 |
| 建物面積 | |
| 竣工 | 1980年 |
| バルコニー | |
| 現状 | 空室 |
| 引渡時期 | 即時 |
| 契約期間 | 2年間/更新料は賃料1ヶ月分 |
| 取引形態 | |
| PRコメント | 中庭あり |
物件のお問い合わせはこちらから
賃貸-住居 : 藤和青葉台コープ103号室
下記項目にご記入下さい。後日、ご連絡さしあげます。